超聲波液位計系列
您現在的位置: 上海自動化儀表股份有限公司 > 產品導航 > 液位計/物位計/料位計 > 超聲波液位計
超聲波液位計
產品說明: 超聲波液位計原理: 超聲波物位計的工作原理是由換能器(探頭)發出超聲波脈沖遇到被測介質表面被反射回來。部分反射回波被同一換能器接收,轉換成電信號。超聲波脈沖以聲波
質量穩定:實行全過程質量監控,細致入微,全方位檢測!
真品保證:正品保障,防偽標志
交貨快捷:先進生產流水線,充足的備貨,縮短了交貨期!
全國咨詢熱線:
021-56725115
產品說明
超聲波液位計原理:
超聲波物位計的工作原理是由換能器(探頭)發出超聲波脈沖遇到被測介質表面被反射回來。部分反射回波被同一換能器接收,轉換成電信號。超聲波脈沖以聲波速度傳播,從發射到接收到超聲波脈沖所需時間間隔與換能器到被測介質表面的距離成正比。此距離值S與聲速C和傳輸時間T之間的關系可以用公式表示:S=CxT/20
由于發射的超聲波脈沖有一定的寬度,使得距離換能器較近的小段區域內的反射波與發射波重迭,無法識別,不能測量其距離值。這個區域稱為測量盲區。盲區的大小與超聲波物位計的型號有關。
超聲波液位計特點:
由于采用了先進的微處理器和獨特的EchoDiscovery回波處理技術,
超聲波物位計可以應用于各種復雜工況。
“虛假回波學習”功能使得儀表在多個虛假回波的工況下,可正確地確認真實回波,獲得準確的測量結果。
換能器內置溫度傳感器,可實現測量值的溫度補償。
超聲波換能器采用最佳聲學匹配之專利技術,使其發射功率能更有效地輻射出去,提高信號強度.從而實現準確測量。
2、超聲波液位計儀表概況
|
類型
|
DLM551
|
DLM552
|
|
應用
|
各類工業領域的液位測量,特別是水處理工業
|
各類工業領域的液位測量,特別是水處理工業
|
|
測量范圍
|
液體0.25…4m
|
液體:0.4…8m
|
|
過程連接
|
G1/2/1A
|
G2A
|
|
換能器外殼材料
|
PTFE, PU/PC
|
PTFE、PU/PC
|
|
過程溫度
|
-40…70℃
|
一40…70t
|
|
過程壓力
|
-0. 2. .. lbar
|
-0.2. .. lbar
|
|
信號輸出
|
兩線制,四線制4...20mA/HART
|
兩線制/四線制4.. .20mA/HART
|

|
類型
|
各類工業領域的液位測量
|
|
測量范圍
|
液體:0.5…15m
|
|
過程連接
|
法蘭或吊架
|
|
換能器外殼材料
|
PU/PC
|
|
過程溫度
|
-40…70℃
|
|
過程壓力
|
-0. 2. .. lbar
|
|
信號輸出
|
兩線制/四線制4.. .20mA/HART
|
3、超聲波液位計安裝要求
基本要求:
換能器發射超聲波脈沖時,都有一定的發射開角。從換能器下緣到被測介質表面之間,由發射的超聲波波束所輻射的區域內,不得有障礙物,因此安裝時應盡可能避開罐內設施,如:人梯、限位開關,加熱設備,支架等。在這種情況下,安裝時須進行“虛假回波學習”。另外須注意超聲波波束不得與加料料流相交。
安裝儀表時還要注意:最高料位不得進入測量盲區;儀表距罐壁必須保持一定的距離;儀表的安裝盡可能使換能器的發射方向與液面垂直。安裝在防爆區域內的儀表必須遵守國家防爆危險區的安裝規定。本安型的外殼采用鋁殼。本安型儀表可安裝在有防爆要求的場合,儀表必須接大地。
圖示說明:
測量的基準面是探頭的下邊緣。
1、盲區
2、空倉(最大測量距離)
3、最大里程
注:使用超聲波物位計時,務必保證最高料位不能進入測最盲區。
安裝位置:
在安裝DLM551, DLM552的時候.注意儀表和容器壁至少保持200mm的距離。

1、基準面
2、容器中央或對稱軸
在安裝DLM553的時候。注意儀表和容器壁至少保持500mm的距離。

1、基準面
對于錐形容器,且為平面罐項,儀表的最佳安裝位置是容器項部中央,這樣可以保證測呈到容器底部。

常見安裝位置的正誤
1、錯誤:換能器應與被測介質表面垂直。
2、錯誤:儀表被安裝在拱形或圓形罐項,會造成多次反射回波.在安裝時應盡可能避免。
3正確:

1、錯誤:不要將儀A安裝于入料料流的上方,以保證測量的是介質表面而不是入料料流。
2、正確注意:室外安裝時應采取遮陽、防雨措施。
超聲波液位計安裝方式說明
吊架式安裝:吊架式用于DLM 553的安裝。

法蘭式安裝:法蘭式用于DLM553的安裝。
防潮:對于安裝在室外或潮濕室內及制冷或加熱的罐上的儀表,為了防潮,應擰緊電纜密封套.而且要在進線口處使電纜向下彎曲。如圖示:

容器接管:容器接管的第度:必須保證探頭伸出接管至少10mmo

導波管安裝:使用導波管安裝(導波管或旁通管),可以避免容器內障礙物、泡沫和空氣渦流對測量的影響。

1、通空氣孔直徑5.. .10mm
如果DLM55X安裝在導波管內進行測量,導波管的直徑只要大于換能器(探頭)的外徑即可(具體數據見:6結構尺寸)。在連接導波管的時候,必須防止大的裂縫和焊縫。另外,必須進行“虛假回波學習”。
注:測最粘附性介質的時候,不能使用導波管安裝。
4、超聲波液位計電氣連接
供電電壓:4...2OmA/HART
(1)(兩線制)電源供電和電流信號共用一根兩芯線纜。具體供電電壓范圍參見技術數據。
(2)對于本安型須在供電電源與儀表之間加一個安全柵。
供電電壓:4...20mA/HART‘
(1)四線制)電源供電和電流信號各自分別使用一根兩芯線纜。具體供電電壓范圍參見技術數據。
(2)標準型儀表電流輸出可采用接地形式輸出。防爆型儀表電流輸出必須浮空輸出。儀表及接地端子應保證良好接地,通常接地可連接到罐的接地點上,若是塑料罐則應接到鄰近的大地上。
連接電纜的安裝:
一般介紹:供電電纜可使用普通兩芯電纜,電纜外徑應為S...9mm,以確保電纜入口的密封。如果存在電磁干擾,建議使用屏蔽電纜。
4...20mA/HART(兩線制〕供電電纜可使用普通兩芯電纜。
4二20mA/HART(四線制)供電電纜應使用屏蔽電纜。
電纜的屏蔽和接線
屏獻電纜兩端均應接c在傳感器內部,屏蔽必須直接連接內部接地端子。外殼上的外部接地端子必須連接人地。
如果有接地電流,屏蔽電纜遠離儀表一側的屏蔽端必須通過一個陶瓷電容(比如:1µF 1500V)接地,以抑制低頻接地電流,同時仍可以防止高頻干擾信號。
接線方式:
兩線
用于HART兩線制:1)供電以及信號輸出
四線
用于HART四線制:1)供電
2)信號輸出
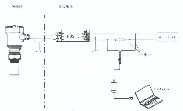
防爆鏈接:
本產品的防爆形式為本質安全型。防爆標志:Exia II B T6。本安型超聲波物位計采用鋁外殼材料,內部采用膠封結構。從而確保換能器和電路部分故障時產生的火花不會泄放出來。產品適用于Exia IIB T6防爆等級以下可燃性介質的物位非接觸式連續測量。
本產品使用時須用安全柵供電。FBS-1安全柵系本產品的關聯設備.防爆形式為本質安全型。防爆標志:[Exia] IIB,供電電壓24V Dc± 5%短路電流為100mA,工作電流4...20mA.
所有電纜均要采用屏蔽電纜,最大長度500米。分布電容<,0.1µF/Km,分布電感,<1mH/Km。超聲波物位計安裝時必須接大地。不得使用其它未經防爆檢驗的關聯設備。
采用GOADware調試物位計

采用HART手持編程器調試物位計
5、超聲波液位計儀表調試
調試方法:
DLM55X有三種調試方法:
(1)顯示l調試模塊
(2)上位機調試軟件GODAware
(3) HART手持編程器
顯示/調試模塊:
ViewPoint是可以插接的顯示調試工具,在DLM55X上ViewPoin一可以以兩個角度安裝(每次旋轉1800)。通過ViewPoint上的4個按鍵對儀表進行調試。調試菜單的語言可選。
調試后,ViewPoint一般就只用于顯示,透過玻璃視窗可以非常清楚地讀出測量值。


上位機調試:通過HART與上位機相連
1、 RS232連接電纜
2、 DLM55X
3、用于COMWAY變換器的HART適配器
4、 250歐姆電阻
5、 COMWAY變換器
通過2C與上位機相連
1、RS232連接電纜
2、 DLM55X
3、用于COMWAY變換器的12C適配器
4 、COMWAY變換器
HART手持編程器:DLM55X可用HART手持編程器編程
1 、HART手持編程器
2 、DLM55X
3 、250歐姆電阻
6、超聲波液位計結構尺寸(單位:mm)
外殼、材質:AL
材質:PBT-FR

DLM551
DLM552
DLM553
|
技術參數
|
|
|
|
|
DLM551和552
|
材料
|
過程連接DLM551 螺紋G12/12A
|
|
|
過程連接DLM552 螺紋G2A
|
|||
|
換能器 PTFE、PUIPC
|
|||
|
重量
|
1 .8...3.0 kg(取決于過程連接和外殼〕
|
||
|
DLM553
|
材料
|
吊架 不銹鋼316L
|
|
|
換能器密封 硅膠
|
|||
|
鎖緊法蘭 不銹鋼316L
|
|||
|
外殼 塑料PBT-FR:鋁
|
|||
|
外殼和外殼蓋之間的密封 硅橡膠
|
|||
|
外殼上用于ViewPoint的視窗 聚碳酸酯
|
|||
|
接待端子 不銹鋼
|
|||
|
重量
|
2 .7...5.0 kg‘取決于過程連接和外殼)
|
||
|
DLM55I和552兩線制
|
供電電壓
|
非防爆 16...36V DC
|
|
|
本安防爆 16...30V DC
|
|||
|
DLM553兩線制
|
供電電壓
|
20..36V DC
|
|
|
功耗
|
max.22.5ma
|
||
|
允許紋波
|
<LOOHz Uss<1V
|
||
|
<100Hz…100KHz Uss<10mV
|
|||
|
四線制
|
供電電壓
|
24V DC110%
|
|
|
功耗
|
max.4VA,2.1w
|
||
|
輸出參數
|
輸出信號
|
4.__2.0mA/HART
|
|
|
分辨率
|
1 .65A
|
||
|
故障信號
|
電流輸出不變:20.5mA; 22mA;,3.8mA
|
||
|
兩線制負載電阻
|
見下圖
|
||
|
四線制負載電阻
|
最大500歐姆
|
||
|
積分時叫
|
0.20秒,可調
|
||

|
特征參數
|
||
|
盲區
|
一DLM551
|
0.25m
|
|
一DLM552
|
0.4m
|
|
|
一DLM553
|
0.5m
|
|
|
最大測t距離 液體
|
一DLM551
|
4m
|
|
一DLM552
|
8m
|
|
|
一DLM553
|
15m
|
|
|
超聲波頻率
|
一DLM551
|
46KHz
|
|
一DLM552
|
35KHz
|
|
|
一DLM553
|
35KHz
|
|
|
測量間隔
|
>2秒(取決于參數設置)
|
|
|
調整時間”
|
>3秒(取決于參數設盆)
|
|
|
發射角
|
一DLM551和552
|
5.5℃
|
|
一DLM553
|
3℃
|
|
|
顯示分辨率
|
1mm
|
|
|
精度
|
0.2%一0.5%(滿2程)
|
|
|
工作存儲及運愉溫度
|
一40. ..+70℃
|
|
|
過程溫度(探頭部分的溫度)
|
-40,二十70t
|
|
|
一相對濕度
|
<95%
|
|
|
一壓力
|
0.1MPa
|
|
|
耐振
|
機械展動IOM/S2 .10.一50Hz
|
|
|
電纜參數
|
1個M20XI.S電纜入口(電纜直徑5...9mm),
|
|
|
電纜入口1插頭
|
一個盲堵M20X1.5
|
|
|
彈簧接線端T
|
用于導線橫截面2.5mm2
|
|
1)劇烈的物位突變后.給出正確物位麗要的時間。
8、超聲波液位計選型指南
|
DLM551
|
||
|
防爆
|
P標準型(非防爆)
|
一本安型(Ex is IIB T6)
|
|
換能器材料l過程溫度/防護等級
|
A PU/PC/一40...70℃/I P66
|
B PTFE/一40…701/IP67
|
|
過程連接
|
CP螺紋GI.認
|
|
|
電子組件
|
A 4二20mA兩線制
|
B 4... 20mA/24V DCt10%四線制
|
|
C 4二20mA HART兩線制
|
D 4…20Ma/24VDVt10%/HART四線制
|
|
|
外殼,防護等級
|
S 塑料/IP66
|
A 鋁/IP66
|
|
電纜進線
|
M M20x1.5
|
N 2/1NPT
|
|
現場顯示/編程
|
A 帶
|
X 不帶
|
注:本安型只可選“A”型外殼,及“A”或’'C'’電子組件。
|
DLM552
|
||
|
防爆
|
P標準型(非防爆)
|
I本安型(Ex is IIB T6)
|
|
換能器材料,過程溫度l防護等級
|
A PU/PC/一40...70℃/IP66
|
B PTFE/-40二70t/IP67
|
|
過程連接
|
CP螺紋02A
|
|
|
電子組件
|
A 4二2UmA兩線制
|
B 4... 20mA/24V DC 110%四線制
|
|
C 4... 20mA HAR‘一兩線制
|
D 4... 20mA/24V DCt 10%/HART四線制
|
|
|
外殼/防護等級
|
S塑料/IP66
|
A鋁/IP66
|
|
電纜進線
|
M M20x1.S
|
N 2/1NPT
|
|
現場顯示/編程
|
A帶
|
X不帶
|
注:本安型只可選二“A”型外殼。及’'A',或‘'C',電子組件。
|
DLM553
|
||
|
防爆
|
P標準型〔非防爆)
|
I本安型(Ex is IIB T6)
|
|
換能器材料/過程溫度/防護等級
|
A PU/PC/-40二70t/1P66
|
|
|
過程連接
|
FL法蘭
|
OJ吊架
|
|
電子組件
|
A 4...20mA兩線制
|
B 4... 20mA/24V DCs10%四線制
|
|
C 4... 20mA HART兩線制
|
D4…20Ma/24V DC110%/HART
|
|
|
外殼/防護等級
|
S塑料/IP66
|
A鋁/IP66
|
|
電纜進線
|
M M20x1.5
|
N 2/1N PT
|
|
現場顯示/編程
|
A帶
|
X不帶
|
注:本安型只可選“A”型外殼及,“A”或“C”電子組件。

